The Dynasty

The Dynasty Interior Design

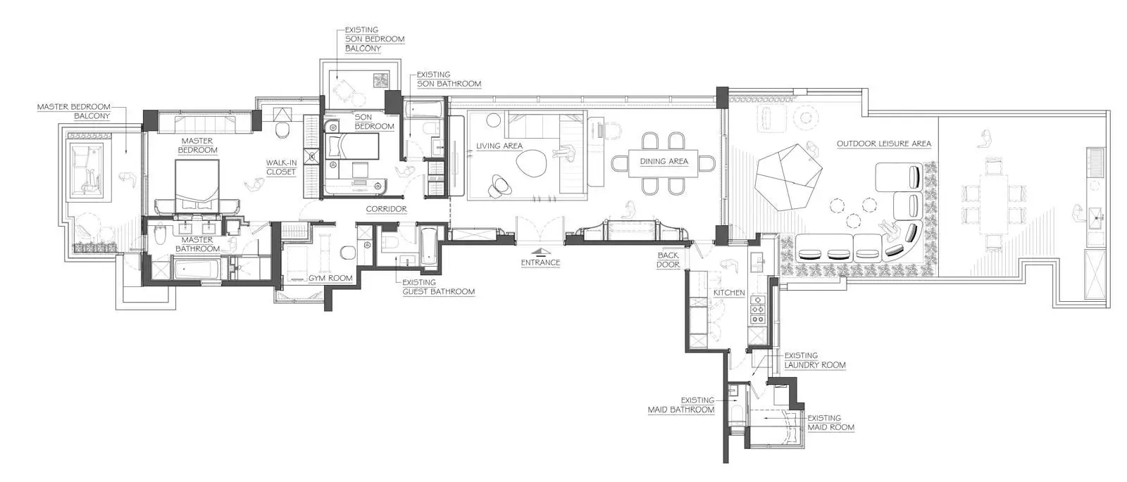
The Dynasty is located in Tsuen Wan, boasting an indoor area of approximately 1,600 square feet and an outdoor area of about 1,000 square feet. The client has a vision of transforming this space into a serene residential environment that captures the essence of a resort-like atmosphere.

To achieve this, Danny has chosen to incorporate a variety of natural elements throughout the design. He selected richly textured water ash wood for the furnishings, complemented by cement-gray flooring that brings a modern yet earthy touch to the space. This thoughtful combination of materials, along with various mountain patterns and textures, contributes to an ambiance that is deeply connected to nature, creating a tranquil setting for relaxation.

In the living and dining area, a stylish beige L-shaped sofa is harmoniously paired with a carpet featuring mountain motifs, fostering a sense of leisure and warmth. Above the dining table, two spherical pendant lights provide a beautiful accent, enhancing the overall aesthetic while adding a touch of sophistication. The unit’s expansive floor-to-ceiling windows allow for stunning sea views, flooding the interior with natural light and creating an inviting atmosphere. Additionally, the use of mirrored elements on the cabinet doors not only reflects the beautiful scenery outside but also serves to amplify the sense of spaciousness within the unit.

Furthermore, the design includes two distinct outdoor platforms, each offering a unique experience. The first platform is ideal for barbecues and family gatherings, making it a perfect spot for enjoying leisurely afternoons and evenings together. The second platform, connected to the master bedroom, features a luxurious large jacuzzi, providing an exquisite retreat for soaking while watching the sunset. This indulgent amenity is an essential aspect of the resort-like experience that the client desires, ensuring that every moment spent in this home feels like a vacation.

MEDIA

Thei | technological and higher education institute of hong kong chai wan campus. magnail cosmetics top no wipe 15 g – velasaa.